KIWOOM ARCHITECTS
키움건축사사무소
Works
Residential
Office
Essay
About
Contact us
Blog pages.
과천 업무시설_LH 사업단
« 이전
/
다음 »
작성자:
kiwoom
/
11/25/2018
/
Office
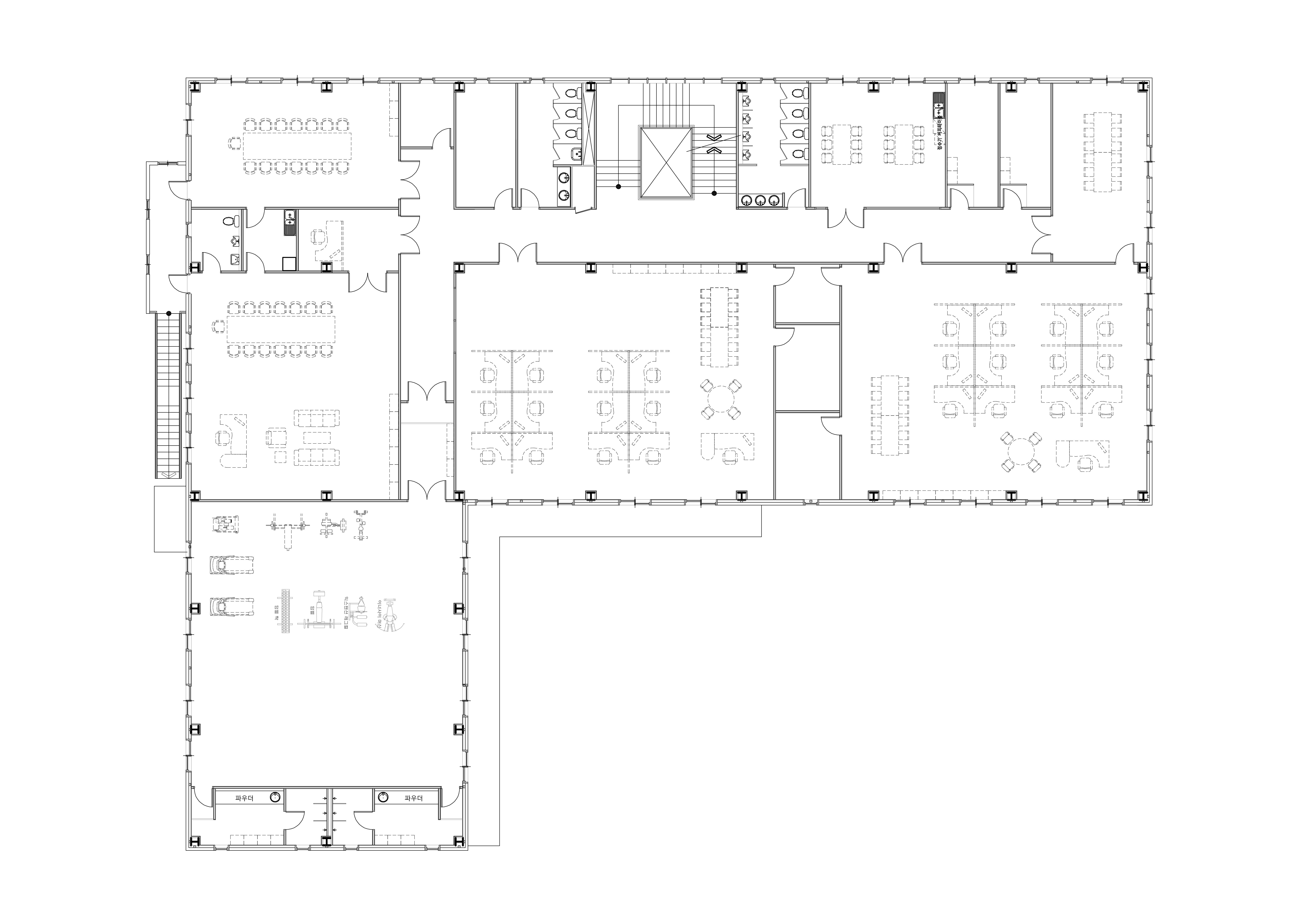
1F PLAN
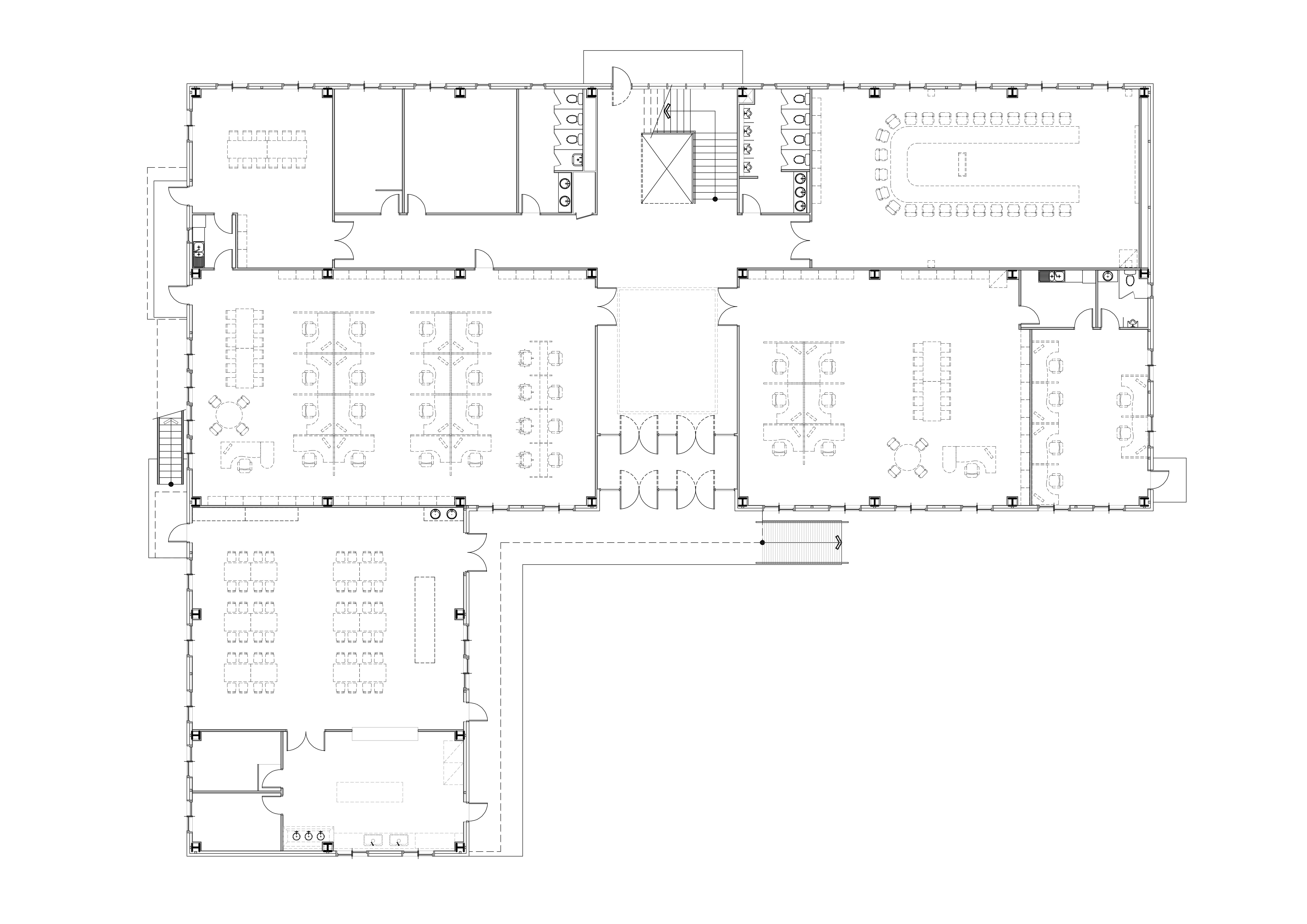
2F PLAN
좋아하기
가져오는 중...
태그:
건축설계
,
공장설계
,
키움건축사사무소
,
업무시설
,
인테리어설계시공
,
주택설계
리블로그
구독
구독함
KIWOOM ARCHITECTS
가입하기
이미 WordPress.com 계정을 가지고 계신가요?
바로 로그인하세요.
KIWOOM ARCHITECTS
구독
구독함
가입
로그인
단축 링크 복사
이 콘텐츠 신고하기
리더에서 글 보기
구독 관리
이 표시줄 접기
댓글 로드중...
댓글 달기...
이메일
이름
웹사이트
%d